pdweb
無題ドキュメント スペシャル
インタビュー
コラム
レビュー
事例
テクニック
ニュース

無題ドキュメント データ/リンク
編集後記
お問い合わせ

旧pdweb

ProCameraman.jp

ご利用について
広告掲載のご案内
プライバシーについて
会社概要

コラム
イラストリレーコラム:若手デザイナーの眼差し

第146回 石田雄琉/建築家

このコラムページでは、若手デザイナーの皆さんの声をどんどん紹介いたします。作品が放つメッセージだけではない、若手デザイナーの想いや目指すところなどを、ご自身の言葉で語っていただきます。





●はじめに

2023年度末に村野藤吾の建築を記録した写真集『小さな窓の光』を友人とともに制作した。私は普段建築設計を専門にしており、このように自分で写真を撮って、本の制作をするのは初めてのことだった



『小さな窓の光』書影。(クリックで拡大)





『小さな窓の光』中面。(クリックで拡大)





設計をすることだけでは考えなかったことや写真を撮ることを通して考えたことが、もしかしたら設計の仕事の主題の1つになるのではないかという予感から、ここでは建築を作ることや経験するということを写真という別領域から考え直すきっかけになればと思う。

また、スペースに限りがある本コラムでは村野藤吾の建築の背景や詳細には立ち入らず、撮影現場で感じたことをもとに、時には写真家の仕事を引用し多角的な補助線を引きながら、理論の構築と実務における設計手法を結び付けたいと思う。

●カメラの性質

本書の写真は三脚や照明などの撮影機材は使わず、すべてフィルムカメラで撮影している。大量の図面をカバンに詰め、オリンパスペンを片手に、街の中でスナップを撮るように撮影した。

オリンパスペンというカメラは、1960年~1970年頃に流行、1枚の写真が35mmフィルムの半分サイズのため、1本のフイルムで倍の数の写真が撮れるという特徴がある。それが、家庭用のスナップにぴったりで当時はアマチュアに好まれて使われていたようだ。また、普通にカメラを構えて撮ると写真が縦向きになるため、ポートレートにも向いており、流行の後押しにもなったようだ。

本書に収められている写真群は、建築雑誌に掲載されている写真とは違い、空間に対してどこか「距離の近さ」のようなものを感じる。それをひとまず「建築のポートレート」と呼んでみたいと思う


●「距離」と「視線」の問題

ポートレートというのは、自己(撮影者)と他者(被写体)の距離感が表象される手法だと言われており、写真における重要なテーマの1つでもある。牛腸茂雄による『SELF AND OTHERS』の写真は、どこか被写体との「距離の遠さ」を感じてしまうし、それに対して、野口里香の『父のアルバム』の写真には被写体の「距離の近さ」を感じる。

それは、単なる対象者との親密さや家族関係といったような社会的な関係とは切り離された、写真世界が作る独自の「距離」が生まれているのではないだろうか(牛腸のポートレート写真の中には実兄弟が含まれている)。このことを写真が持つ「距離の問題」と捉えてみる。

また、ホンマタカシの『THE NARCISSISTIC CITY』はカメラオブスキュラを用いて撮影している。カメラオブスキュラとは、ラテン語で「暗い部屋」の意味で、カメラの原理そのものである。

カメラが開発される以前は暗室に針穴を開け、そこを通る光によって写し出される対象物を壁面に投影し、それを下絵に風景の模写が行われていた。ホンマはこの原理をビジネスホテルなどの都市の建築物の中で行っている。これにより撮影した写真が示唆しているのは、建築というのは新たに視線を作り出す装置になり得るということではないだろうか。これを空間が持つ「視線の問題」とする。

以上の「距離と視線の問題」として建築を捉えてみたい。建築雑誌のように建築を説明するための写真ではなく、写真から建築を考えた時、建築はどのような風景=「距離と視線」を作り出せるのだろうか。本書の制作を通じて、このような興味が生まれてきた。

●建築のポートレート
-建築に近づいたり遠ざかったりして見る。あるいは、建築以外を見ること-

さて、唐突ではあるが「建築の経験」とはどこから始まってどこで終わるのだろうか。この問いは前述した「距離と視線」の問題を孕んではないだろうか。

建築の内部に入ったとき(あるいは建築が視界に入ったとき)から、その建築を見終えるまでを「建築の経験」というのだろうか。また、建築には必ずコンテクストがまとわりつく。この状況は空間的にも社会的にも存在していると言えるだろう。

空間的とはいうまでもなく周辺環境である。建築を建てるということはそれが設計者の意識的か無意識的かに関わらず変化するものであり、社会的とは、それが建てられる背景や歴史である。ここでは特に空間的なコンテクストに着目したい。以下は、村野藤吾の建築を撮影していく中での個人的な体験ではあるが、「距離と視線」の問題を考えるきっかけになったものである。

●村野藤吾の作例

小山敬三美術館は懐古園という小諸城跡公園内にあり、千曲川に臨む標高650mの断崖の上に建っている。

本多静六によって設計された園内の林に溶け込みような形状をしており、参道から歩いてくると木々よりも建物の高さの方が低いため、十分に近づかないとはっきりとした輪郭が見えない。きのこを連想させるような屋根形状や、全体的な曲線は建築内部にも続き、生き物の体内を思わすような村野藤吾のユニークな造形感覚である。

しかし、この建物で一番印象付いているのは、その帰り道である。ある程度建物全体を見終えて、次の目的地に移動している時ふと振り返ると断崖から美術館が見えるのである。その時、その場で完結していた建築の大らかな経験が、一気にこの広大な土地を覆うように拡張されたような感覚がしたのである。


小山敬三美術館の外観。(クリックで拡大)





帰り道からの眺望。(クリックで拡大)





渡辺翁記念館の撮影時は、地元中学校の音楽演奏会が開催されていた。そのため、この日は地元の人でいっぱいで大ホールの観客席は、ほとんど埋まっていたように記憶している。

演奏会終了後、ぞろぞろと出てきた観客は建物の広場に足を止め、演奏会の成功を友達同士で祝いあったり、それを見に来ていた親同士が喋ったり、子供が走り回って遊んでいたりなど、広場は各々ののびやかな活動で満たされていた。

建物の目の前には市民公園があり、広場だけでは飽き足らずか、子供たちがその公園でキャッチボールや追いかけっこをして遊んでいた。それはまるで、建築の空間が外部にまで溶け出しているように見えた。




渡辺翁記念館の広場での人々。(クリックで拡大)





広場での人々。(クリックで拡大)






長野県原村にある八ヶ岳美術館の周辺は、白樺の林に囲まれた広大な敷地内に清水多嘉示の屋外彫刻が配置されている。

美術館は半円の壁に半球とヴォールトの屋根がグリッド状に反復して構成されており、ある規則に則って設けられた開口部は、外部の環境や屋外彫刻が内部にいながらもちらちらと視界に入るスリットの役割を担っている。

ごく当たり前のことだが、建築を経験するときは、外観を見た上で内部に入る。周辺環境と建物の建ち方によってはおおよその外観を観察して、全体の構成を把握した上で内部に入るということもあるだろう。

しかし、八ヶ岳美術館では、その順番が反転したり逆流する感覚に陥るのである。内部にいながらもさっきまで見ていた外部からの視点を思い浮かべてしまう。さっきまで見ていた自分の視点を思い出すこと。それは清水多嘉示の彫刻が視覚と記憶によって記号化され、記号化された彫刻が違う視点から見た時に、過去の視点をほのめかすというような感じである。




八ヶ岳美術館の外観と清水多嘉示の屋外彫刻。(クリックで拡大)





内部から外部の視線。(クリックで拡大)






いずれにしても、当時感じた空間の個人的な体験は「距離と視線」に対して無意識的に着目していた。ここまで検討してきた建築と写真の「距離と視線の問題」は、実際の建築設計においてはどのように翻訳可能であろうか。

●敷地境界線の外側を

つい先日、京都府舞鶴市で私たちが設計したホテルが竣工した。敷地は日本海につながる舞鶴湾から枝分かれした伊佐津川に面しており、既存の小さな木造家屋を2棟同時に改修するプロジェクトである。川の向側には、五老岳が広がっており、漁業が栄えているここには海、川、山といった自然と漁業と町の生活といった人々の営みが共存する風景が存在している。



▲舞鶴市のホテル。敷地周辺からの風景。Ph:白井茜。(クリックで拡大)





敷地一帯の木造家屋群。(クリックで拡大)









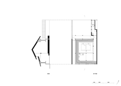
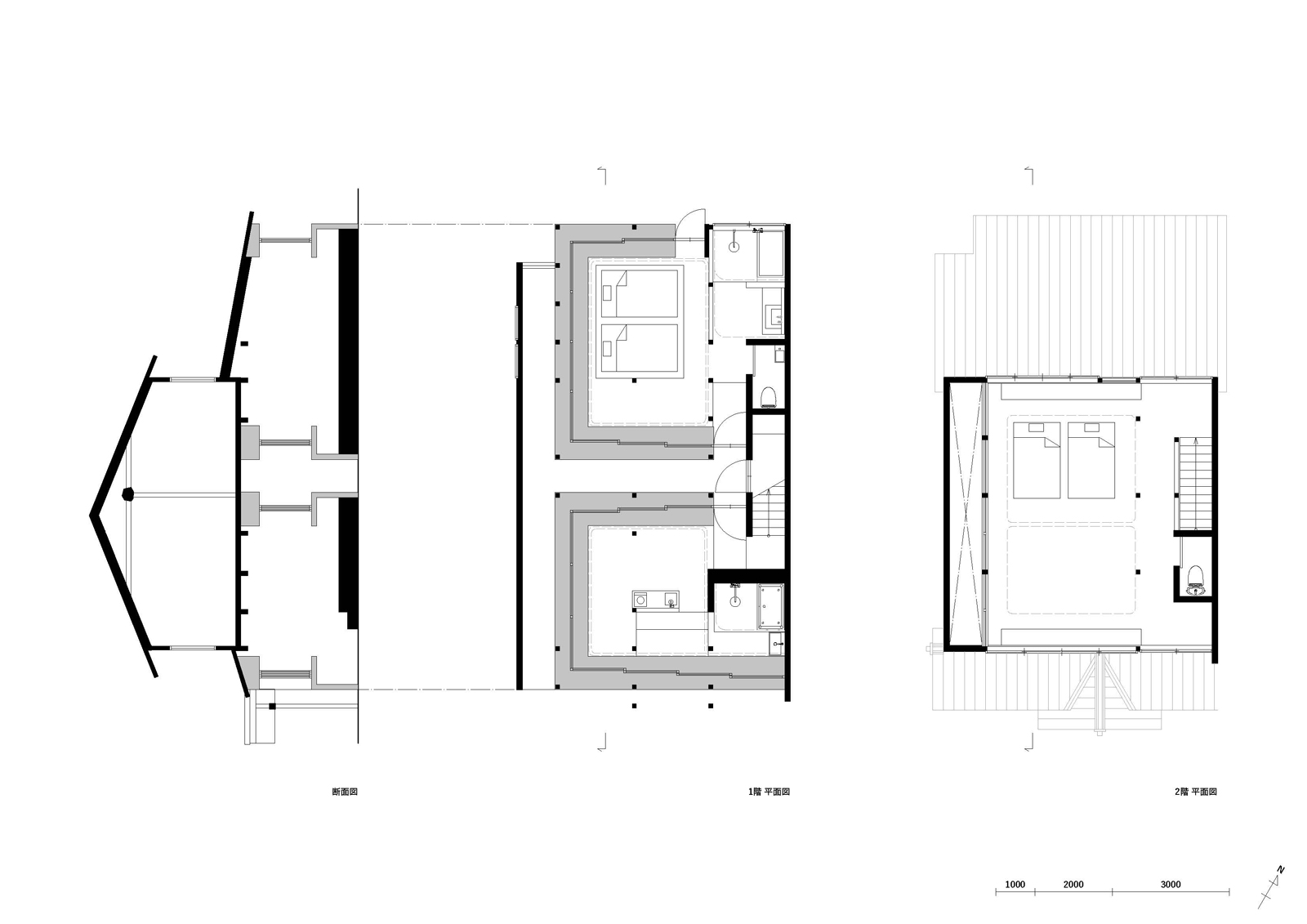
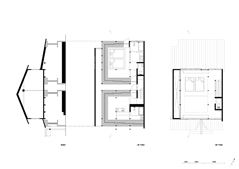
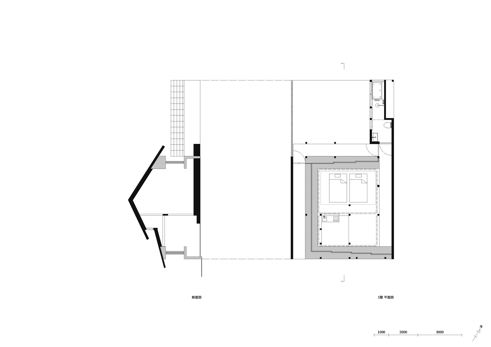
平面図1:A棟。(クリックで拡大)





平面図2:B棟。(クリックで拡大)






舞鶴市の中心部の多くは、車道の拡張や商業施設の建設といった開発が進み、対象となるホテルを含む敷地一帯には、かつて舞鶴町から周辺地域と合併し舞鶴市になる際に人口増加とともに市によって建設された木造家屋が立ち並んでおり、近代化当時の産業と生活空間の風景がそのまま残っている。私たちは失われる危機にある目の前の風景をより強く意識できるような設計を検討した。

結果、プライベートの確保が最低限必要な部屋(トイレや浴室)を直線上にまとめ、それ以外の客室となる空間は木製ガラスサッシで囲み、道路側の南北方向に視線を通すための針穴を開けた。また、入り口を既存の玄関からずらして一度外部へ回遊させることでホテルでの部屋の体験を、外部の遠い舞鶴湾にまで拡張させるという試みであった。



竣工写真1_A棟。Ph:白井茜。(クリックで拡大)





竣工写真2_B棟。Ph:白井茜。(クリックで拡大)








竣工写真2_A棟。Ph:白井茜。(クリックで拡大)





竣工写真2_A棟。Ph:白井茜。(クリックで拡大)








竣工写真2_B棟。Ph:白井茜。(クリックで拡大)





竣工写真2_B棟。Ph:白井茜。(クリックで拡大)






●さいごに

ここまで検討してきた観察による仮説と設計での実践の強度はまだまだ不十分であるだろうし、ツッコミどころも多分にあるだろう。そのような指摘含め、どこかの機会で他者と交えて議論したいと思っている。

本コラムの機会をいただくまで、漠然と整理しきれなかった思考や興味関心がまとまり、次のステップに進めることができると思う。このような機会をいただき深く感謝申し上げます。



石田雄琉(Takeru Ishida):1999年京都府生まれ。2021年京都造形芸術大学芸術学部環境デザイン学科卒業。2021年~2023年SANAA事務所。2023年よりフリーランスで活動中。
Instagram:@takeru_ishida_




2024年7月9日更新。次回は房川修英さんの予定です



 


 


Copyright (c)2007 colors ltd. All rights reserved