|

リレーコラム:若手デザイナーの眼差し
第116回 大島頌太郎/建築家
このコラムページでは、若手デザイナーの皆さんの声をどんどん紹介いたします。作品が放つメッセージだけではない、若手デザイナーの想いや目指すところなどを、ご自身の言葉で語っていただきます。
●憧憬と意志
私を虜にする建築は過去に生まれた。それらは現代建築に無力感を抱かせるほどの質と量である。私が7年ほど過ごした英国、そこから旅をした西欧の国々と地域は、数えきれない標本を蓄えた博物館のようであった。
単に古い建物を歴史探訪のように見たわけではない、言葉のない対話をし、手で考え、頭で理想を描き続けた日々。
それは発見と感嘆の連続であり、建築という終わらない文化を目の当たりにして震えた。時代を超えて存在する建築に新旧の概念は存在しない。骨の髄まで古典でありながら、人を感動させ続ける新しさを内包する建築。それを直感的にこの身体で学んだ。
建築はかつて信仰とともにあった、その歴史は長い。この信仰とは建築が神への「捧げ物」として建てられたという意味だけではなく、建てる人々の精神も含まれる。建設とは作業をただ行うだけではない。1つひとつの労働、それが信仰の心を持つことによって建物に外見の美しさだけではない、不屈の生命力と意志をもたらし人々はこれに熱狂した。このようにして建築に費やされた労力が有効に表現され、今日私はそれを前に深い畏怖の念と憧れを抱く。
建築とは、精神や意志を形として表現することができる総合芸術なのだろう。私は一生をもってしてもすべてを理解することはできない。しかし、このインスピレーションを与えてくれた過去という清らかな上流に向かって一歩でも多く歩みを進めたらと思う。


▲Chiesa Santi Luca e Martina martiri(Roma, Italy/筆者撮影)。(クリックで拡大)
|
 |
 
▲Bath Abbey(Bath England/筆者撮影)。(クリックで拡大)
|
 |


▲Shoreditch Town HallとCityの高層ビル群(London/筆者撮影)。(クリックで拡大)

|
●ロンドンでの仕事
私が大学院を出て初めて師と仰いだJamie Fobertは、歴史と芸術の狭間に建築を見る、話好きの少年のような男であった。David Chipperfieldの下で長年学んだJamieが解き放つモダニズムと古典の調和の感覚、さらに既存の文脈に囚われない彫刻的なフォルムの起用が絶妙に融合し、英国内外で高い評価を受けていた。
2020年には建築作品による数々の文化的な貢献が認められ、女王陛下エリザベス2世よりCBE(Commander of British Empire)大英帝国勲章が授与された。その4年前、私はJamie Fobert Architects に入社、後にNational Portrait Gallery 大規模改修国際設計競技を担当、他の世界的な有力建築事務所を相手に勝利し設計を進めた。
1896年開館のNational Portrait Galleryはロンドン中心部に位置する国立美術館であり、世界最大級の肖像画コレクションを有している。建築家Ewan Christian によるフィレンツェルネッサンス様式の邸宅をモチーフにしたメインファサードはポートランドストーンに刻まれたレリーフをまとい、力強い存在感と華麗な表情を合わせ持っている。
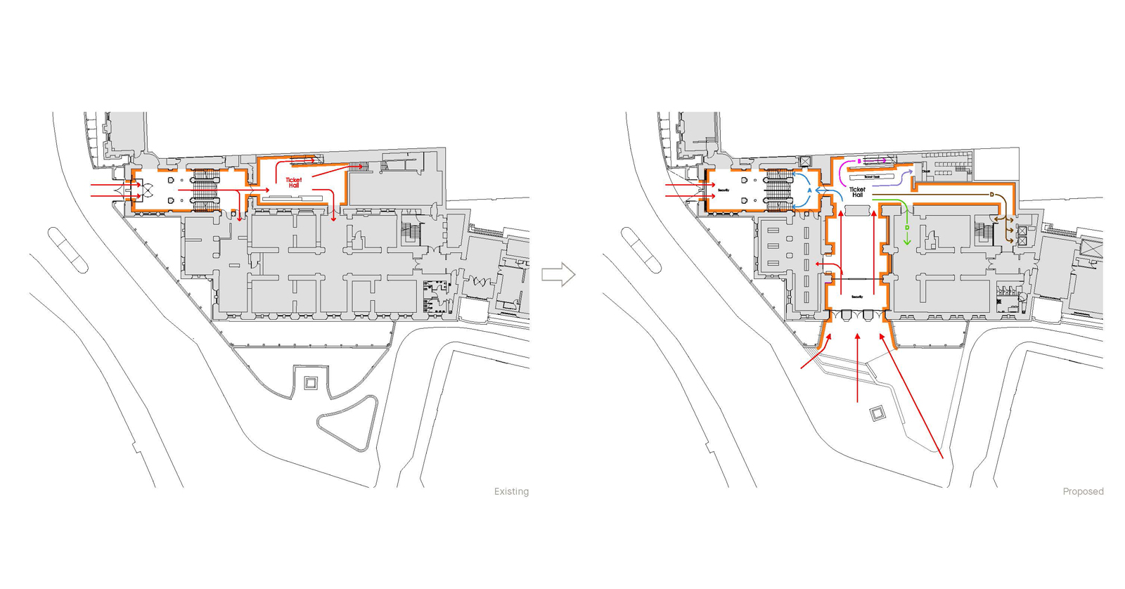
第一級保存建築登録(Grade I listed)されている既存建物に対して我々は、通常は保存すべきファサードを構成する地上階の3つの窓を取り除き、新しい入り口として作り変えた上で、その前方にスロープ状の街へ開かれたアプローチ兼広場を提案した。当初は建物のファサードの一部解体し、開口部を本来と違う意味合いへ変更する案に行政や建築保存活動団体から激しく否定された。しかし、建物を取り巻く環境は19世紀から大きく変化していること、ロンドンの中心に新たな広場が生まれる事の革新さ、新しい動線や平面計画との整合性、そしてこれから先の歴史を作る建物として存在していくための最善の方法がこの案であることを解き続けた。
偉大な建築とは時代に呼応しながら生き抜く粘り強さを秘めている。それはパルテノン神殿やシエナ大聖堂でも同じである。歴史的な建物を腫れ物を触るように、大事に修復のみを行いながら向き合うのは私の意図するところではない。建築が歴史として語られ続けるためには、その核となるエッセンスを見極め、残しながらも新陳代謝させていくことが必要と思う。この新陳代謝は新しい要素のみによって更新させていくだけではなく、過去に置き去りにされた要素を再び呼び起こすこともある。
開館当時、紫外線が絵画に及ぼす影響について知られておらず、自然光の下に鑑賞することが良いとされた。そのためNational Portrait Gallery には展示スペースに向けて光を取り込む窓が多く設計されていた。しかし、科学が進んだ後の今日では絵画の保護を目的にほぼすべての窓がブラインドや蔀戸のようなパーティションで封じられ、薄暗い内部空間となっていた。かつてこの建物が意図した自然光に溢れる内部空間を取り戻すため、新たな平面計画、絵画スペースの再配置などにも取り組んだ。2023年春完成予定。
建築と向き合う時、その大義名分を知る努力をする。1つひとつが異なる建築、それらはどこから来てどこに向かうのか。新たな歴史を作るための駆け引きができるのが建築家の職能であるというのが今の私の考えである。


▲既存メインファサード。遮光パーティションによって締め切られた窓。(クリックで拡大)
|
 |


▲外観イメージ。2023春完成予定。(クリックで拡大)
|
 |


▲地上階の動線と新アプローチ。既存と提案の比較。(クリックで拡大)

|


▲新アプローチのスタディー模型。(クリックで拡大)
|
 |


▲新アプローチと新エントランス模型。(クリックで拡大)
|
 |


▲進行中の工事現場。(クリックで拡大)

|
大島頌太郎/Oshima Shotaro
1990年東京生まれ。多摩美術大学卒業後、英国Glasgow School of Artに大学院留学し建築を学ぶ。Jamie Fobert Architectsに勤務し、National Portrait Gallery, London(英国立肖像画美術館)大規模改修計画を担当した。現在、個人で設計、家具デザイン、大学でのレクチャー、作品展示会等の活動を日英で行う。
https://www.instagram.com/_shotaro_oshima_/
2021年12月17日更新。次回は中村園香さんの予定です。
※本コラムのバックナンバー
http://pdweb.jp/column/index.shtml#mailmag
|