|

リレーコラム:若手デザイナーの眼差し
第111回 小林良平/建築家
このコラムページでは、若手デザイナーの皆さんの声をどんどん紹介いたします。作品が放つメッセージだけではない、若手デザイナーの想いや目指すところなどを、ご自身の言葉で語っていただきます。
●被災地の建築家
建築家として、建築の設計やまちづくりなどをしているのですが、今の活動のスタンスになった背景には被災地での経験が大きく影響しています。大学3年生の終わりに仙台で東日本大震災を経験しました。
当時東北の復興にどのように関わるべきか皆が模索し、建築家も様々なアクションを起こしていました。デザインを得意とする建築家が地方に入り、学生と汗をかきながら歩き回り、地元住民と話す様子は新鮮でした。
一方で当時学生の私が感じたのは、社会と建築家の距離です。ある地域に限定的に関わる建築家、復興の将来像を講演会や書籍で発表する建築家、公共建築物のプロポーザルに参加する建築家、あえて関わらない建築家など様々な振る舞いをする建築家がいました。しかし復興という国家的なプロジェクトにおいて、ほとんどの建築家が限定的な業務の受注者でしかない状況に歯痒さを感じました。一部の建築家はそのような状況を打開するため、本来の職域を超えようと挑戦していました。そんな姿を見て、建築家の誰もが社会と自分の距離を模索しているのだから、私も自ら課題を設定し、行動しようと考えるようになりました。その考え方が現在までの活動の根底にあります。
●被災地での私の活動
被災地での私の活動を2つ紹介します。
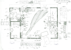
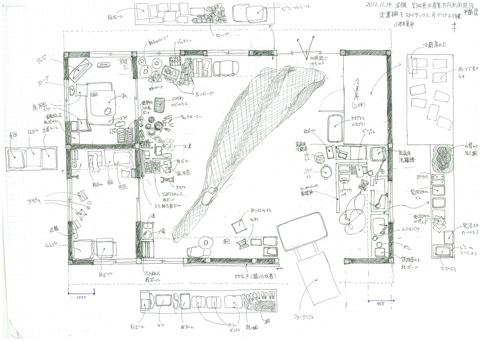
1つ目は漁師小屋の調査、研究、設計です。東日本大震災の被災地である宮城県石巻市雄勝町では、津波の浸水域に家を建てられなくなり、主に漁業の小屋が建設されています。それは戦後のバラック建築のように、ありあわせのものでつくった必要最低限度の造りでしたが、復興という厳しい状況で格闘する美しさがありました。私はそれらをサポートしたいと考え、2012年から2018年にかけて調査し、漁師小屋の図面やヒアリングをA3の紙に236枚描きました。
結局設計の支援はできませんでしたし、必ずしも望まれていない巨大な防潮堤も建築されてしまいましたが、漁師たちの復興の会議をサポートしたり、長引いた仮設住宅生活で漁師小屋に寝室や風呂などを設けざるを得なかった状況を記録し研究として発表したりするなど、しぶとく関連する活動を続けました。当初、「ここに、建築(建築家)は、必要か」を個人的なテーマとしてましたが、振り返ると、建築界全体の話というよりも自分の好きな建築(建築家)が役に立てることを感じたいといった個人的な気持ちが大きかったと思います。


▲調査のスケッチ。(クリックで拡大)
|
 |


▲漁師ヒアリングの様子。(クリックで拡大)
|
 |


▲会議のサポートをする様子。(クリックで拡大)

|
2つ目は2015年の関東・東北豪雨の被災地の茨城県常総市での活動です。水害により、住民の市外への転出、空き家の増加、地域コミュニティの衰退などが加速しました。この活動は行政支援が主であった石巻市雄勝町での活動と異なり、民間NPOの支援でした。雄勝町での経験から行政支援は、予算や立場など、有利な面もある一方で制度や立場に縛られ、住民とフラットな関係が築きにくいと感じたため、常総市での活動は、自分もプレイヤーであるという感覚を持つことを心がけました。
この活動は現在も継続中で、現時点(2021年7月)で、空き家数軒を改修し、カフェや集会所などを整備したのですが、建築の設計に使った時間は全体のおそらく数%しかなく、用途の検討、土地建物の所有者との交渉、建設費の調達、補助金への応募、改修する建築物の法適合調査など、設計以外にすべきことが多い活動でした。しかし場を実現させ、使われることが最大の目的であったので、2020年2月にメインの施設が完成し、現在に至るまで有効に使われている様子は「無」から「人が無意識のうちに使う当たり前の場所」をつくる実感を強く感じることができました。この活動での私は、全体が自然と動き出すよう、調整役として動くようになっていました。


▲大学生と壁に柿渋を塗る様子。(クリックで拡大)
|
 |


▲地域のお母さんたちによるコミュニティカフェ。(クリックで拡大)
|
 |


▲地域の方々との集合写真。(クリックで拡大)

|
以上のような活動は、振り返ると、建築(建築家)が社会において、建築設計以外にどのように価値を持つことができるのかを自分なりに探求する活動であったような気がします。
●被災地での活動と建築設計の関係について
被災地での活動と並行して、大学の研究室、設計事務所、個人などで建築の設計を行ってきました。学生3年、藝大助手4年の計7年間、建築家のヨコミゾマコト氏の側で設計や教育活動に携わりました。


▲長徳寺永代墓ハクラ(設計:ヨコミゾマコト研究室)。(クリックで拡大)
|
 |


▲カネカ応接室(設計:ヨコミゾマコト研究室)。(クリックで拡大)
|
 |

|


▲camouflage hause(設計:小林良平)。(クリックで拡大)
|
 |


▲two-box(設計:小林良平)。(クリックで拡大)
|
 |

|
当初、私は被災地や地方での活動と建築の設計を完全に別物と捉えていました。前者はよりニュートラルに構えて、住民の要望に少しだけ味付けをするような感覚で、後者はいかに新しいものをつくるかといった視点で取り組んでいました。どれだけデザインの自由度が残されているかによって振る舞いを変えていたとも言えます。しかし、最近は両者とも全体の状態を俯瞰し、方針を定めて構築していくという点は同じであると考えています。
●今後について
前述したように被災地での活動は私にとって建築と社会の距離を測る物差しのようなものであったわけですが、10年近く取り組み、以前よりも少し自分にできることが分かった気がします。元々建築設計が好きなのでこれからの基本的な活動のベースは建築設計にしようと思いますが、その視点は被災地での経験を踏まえ、社会的な課題を見据えていようと思います。
具体的には敷地を丁寧に読み取ることと、空き家の活用に着目しています。ここ数十年のまちの拡大は、災害リスクを不可視化するだけでなく、土地の歴史や風景さえも失わせていると考えています。人口が減少し、住む場所を選ぶとしたら、地形、風景といった敷地の環境を丁寧に読み取ることが改めて重要になってくると考えています。同時に増えていく空き家の活用にも興味があります。多くの課題がありますが、常総市での空き家活用の活動を通して、その課題が少しだけ具体的に見えてきました。その2つのテーマについて、より深めていきたいと考えています。
小林良平/Kobayashi Ryohei
一級建築士。ユナワゴアーキ一級建築士事務所代表。2012年東北大学卒、2014年東京藝術大学卒、2015年~2019年東京藝術大学建築科教育研究助手、2021年ユナワゴアーキ一級建築士事務所設立。2011年~2019年宮城県石巻市雄勝町での復興支援活動、2016年~茨城県常総市での復興支援活動。サッカーと建築の研究、漁師小屋の研究、えんがわハウスの設計など。
2021年7月15日更新。次回は永田 敦さんの予定です。
※本コラムのバックナンバー
http://pdweb.jp/column/index.shtml#mailmag
|