|
●たわむんですよね
磯崎新アトリエに入所して最初の担当は、食器だった。次が畳ベッド。さらにカーペットのデザインも。原寸図で食器のサイズやパターンを検討し、原寸でベッドの枠の模型を作り、原寸で大量にカーペットの模様を作って床にばら撒いてパターン図を作成した。
制作が順にアメリカ、イタリア、アメリカだったので、最初の実施図はすべて英語だった。留学したこともなく、英語が得意なわけでもなかったけれど、オーストラリア人やカナダ人のインターン学生に相談しながら描いた図面は、プレゼンテーションドローイングみたいで、ちょっとだけ褒められた。
やっと担当できた建築は、RCと集成材アーチの混構造の別荘だった。木村俊彦さんが構造を見てくれることになって、土曜日に六本木の事務所に1人で伺った。木村さんの第一声は「たわみ、ってわかりますか」だった。大学で習ったのに「たわむんですよね」としか言えず、必死に取った打合メモの単語が漢字なのか英語なのかもわからなかった。
壁厚と集成材のメンバーの選択肢をいくつかもらって、事務所に戻って断面図を描いた。この頃、図面は手描きで、アーチの中心は、ライズと壁間の距離から電卓で計算した。三角関数とルートしか使わないのに、木村さんと同じ関数電卓をこっそり買った。
●魔女なの?
伊東豊雄さんの事務所で担当した建築は、たまたまRCと鉄骨の混構造が多かった。当時の伊東さんは、考え得るすべての解を試そうとしていた。
先入観を捨て、敷地形状や与条件や法規をクリアしながら、それはないだろうと思う案も含めて、ギリギリまで試行錯誤を続ける。当然のように平面にも断面にも端数が出てくる。構造打合で材のメンバーが決まってくると、図面の数字はさらに動く。
ところが、いよいよこれで実施図に入る、というタイミングで、気づくと数字から端数が消えている。5999ミリでも6000ミリでも、1ミリ刻みの中では並んだ数字の1つに過ぎない。それでも、数字を揃えようと意図せずに設計したものが、綺麗な数字に納まっていくのはちょっとした快感である。
当時、担当した世田谷の「レストラン・パスティーナ」は、不等辺三角形の頂点と底辺を交互に並べた屋根を吊って、軒先の高さをすべて変えている。どこか一箇所、三角形の辺長や軒先の高さを変更すると、すべての部材が連動して変わってしまう。それが何回目かの構造打合せの時、「魔女なの? 数字が綺麗になっている」と中田捷夫さんに感心された。魔女じゃなくて、図面の上にカミサマがいるのかも、と思った。
●学生が恋を語れる場所
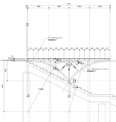
独立して何年も経つけれど、京都芸術大学で「風の舞台」を設計したときにも、同じことを経験した。大学は北白川通りに面した大階段の途中に正門がある。門扉を収納する部分にある階段がデッドスペースなので、「学生が恋を語れる場所を作ってほしい」と理事長から依頼があり、パリのポンデザール(芸術橋)の橋脚を、現代のテクノロジーに置き換えた、キャンティレバーの構造を満田衛資さんに考えてもらった。
16ミリ鉄板を50ミリ離して2枚1組にして、階段の上部と中間点で支えるアーチ型の梁を4枚並べ、その上に角パイプの根太を渡してデッキを貼った、極めてシンプルな構造である。アーチの支点が階段上にあることと、ステージと階段上部との段差を極力小さくすること、しか変数がなく、かえってアーチの形状を決めるのに迷ってしまった。
ステージを門扉の先に飛び出させようと四苦八苦していたが、門扉と干渉しないサイズに小さくして、計算し直したらアーチの円弧から端数が消えた。
以前の手描き・手計算とは違って、CADはどんな端数でも表示する。アーチやカーブを設計するとき、私は鉛筆スケッチをスキャンして、CADに取り込んだものをトレースしていくので、数値は後からついてくるのだが、この時は、円弧の中心が一方の支点から垂直に4500でピタリと納まった。
誰かに褒めてもらいたかったが、鉄工所ではコンピュータと連動して材料を裁断するので端数という概念はほぼ失われている。満田さんも「それで?」という感じだった。
それでも、設計が決まるときには、自分たちの力だけでなく他力があると思えてしまう。私は密かにそれを「二次元のカミサマ」と呼んでいる。
(2022年12月12日更新)
|
 |

▲「風の舞台」の実施図。(クリックで拡大)

▲「風の舞台」 ©市川靖史。(クリックで拡大)

▲「風の舞台」詳細 ©市川靖史。(クリックで拡大)
|